抽芯鉚釘廠家品鑒│山東大學博物館
山東大學是一所歷史悠久,譽滿海內外的百年名校,有著深厚的文化積淀。山東是中華文明的重要發祥地,歷史文化遺產極為豐富。山東大學考古學作為山東考古中堅力量,在發掘山東古老文明的道路上發揮著無與倫比的巨大作用。山東大學有蔣維崧等書畫名家,他們治學勤奮,學識淵博,在古文字學、書法、篆刻、繪畫等藝術領域達到了極高的層面,為我們留下了豐富的文化財產。
▽ 建筑正立面

對山大文化的理解
山東大學汲取齊魯文化營養,秉承學術自由、兼容并包的辦學理念,形成了博大精深、歷久彌新的文化底蘊,奠定了“文史見長”的學術特色,出現了一批在國內外享譽甚高的人文學者,以及像《文史哲》這樣備受關注的學術陣地。山東大學博物館見證了山東大學在人文科學上源遠流長的歷史和在自然科學上的博大精深。
▽ 建筑俯視圖

國之重器——“鼎”
鼎被視為國之重器,是國家和權力的象征。同時也被賦予“顯赫”、“ 尊貴”、“盛大”等引申意義。它是我國青銅文化的代表、文明的見證。漢字中的“鼎”字雖然經過了甲骨文、金文、小篆、隸書等多次演變,但仍然保留著其象形文字的風范和形體特點,其物其字融為一體。
▽ 如鼎般扎實、敦厚的建筑


承托歷史的臺基
我們通過處理,將室外直通二層的大臺階設計為承托整個建筑體塊的臺基,烘托鼎力向上,托承托古今的建筑意境。一方面,臺基作為景觀綠化的一部分,層層升高的綠化平臺,使得場地內的景觀維度更加豐富;另一方面,它作為一個通向博物館的主要通道,大部分人流會在臺階上停留和行走,為校園內學生的活動提供了更多樣化的場所空間,承擔著增進交流的職責。
▽ 室外直通二層的大臺階設計為承托整個建筑體塊的臺基

▽ 層層升高的綠化平臺,使得場地內的景觀維度更加豐富



建筑色彩
博物館位于校園南北主軸線上的節點位置,是整個校園里的主角建筑,標志性建筑不僅要體現地理區域優勢,建筑本身還應該是出類拔萃、獨樹一幟、和具有創新性的。因此在建筑色彩選擇上,我們秉著充分尊重整個校園規劃色調風格的原則,試圖創造出一組統一而又有不同風格的建筑色調。采用明度更高的白色石材作為博物館主要建筑材質,以達到博物館作為校園標志性建筑所應達到的建筑風格,既融入校園整體環境,又突出了主體特質。
▽ 素雅的白色石材作為建筑的主要材質




青銅與竹簡
#p#分頁標題#e#我們在建筑立面材料的選取上,采用銅板作為四個出挑建筑形體的主要外立面材質。由于其高抗腐蝕、易于加工的特性和它獨特、自然的外觀效果,使得銅板非常適用作幕墻材料。同時將歷史悠久、工藝精湛、技術嫻熟的青銅文化融入到建筑立面的設計中,賦予了建筑深厚的文化內涵,也是一種建筑文化的體現。
▽ 銅板作為四個出挑建筑形體的主要外立面材質

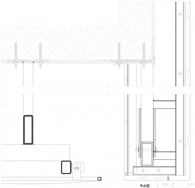
幕墻設計上,采用特殊定制的880mmX2000mm的銅板,通過不銹鋼拉鉚釘與骨架來進行固定。另外,我們將銅板做了一個內凹的造型處理,然后通過銅板的拼接,來實現竹簡的造型肌理,并在銅板上篆刻臨沂銀雀山出土的《孫子兵法》竹簡文物上的原版文字,充分將竹簡元素運用到立面設計中,強化博物館的造型特質。竹簡作為文化載體,將中華民族的博大文化與偉大精神共同傳承,而博物館同樣也作為山大歷史文化的載體,將豐富的歷史傳承下去。
▽ 銅板微微內凹實現了竹簡的造型肌理

▽ 銅板上篆刻著臨沂銀雀山出土的《孫子兵法》



另一方面,在每個立面的幕墻設計中,同樣融入竹簡的理念。通過對玻璃幕墻的劃分,以及不同透明度、不同顏色的玻璃材質選用來實現竹簡的意向,并將古代紋樣進行簡化提煉體現在玻璃幕墻上,形成具有更多文化韻味的新型現代幕墻設計方案。
▽ 幕墻設計中同樣融入竹簡的理念


▽ 內部空間


▽ 夜景

▽ 總平面圖

▽ 一層平面

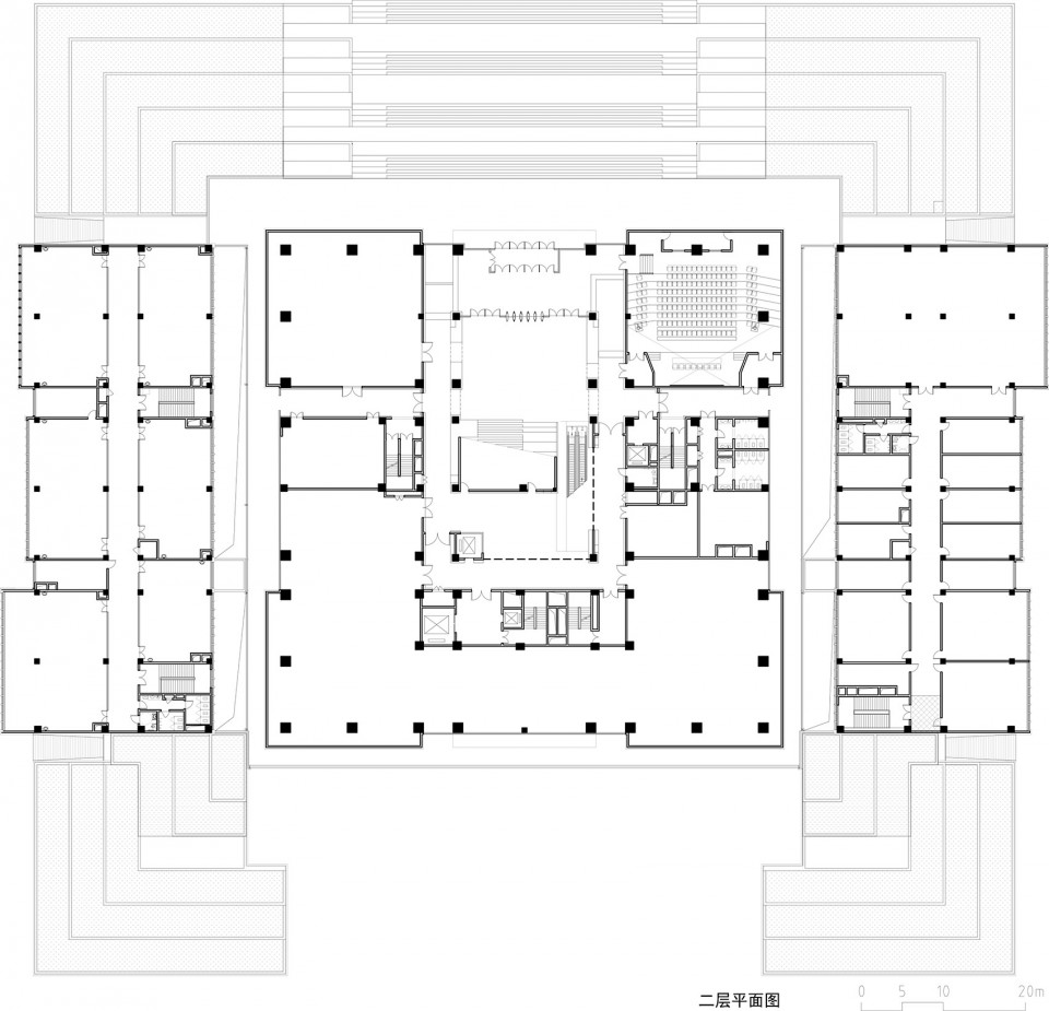
▽ 二層平面

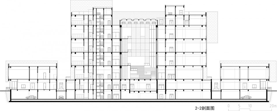
▽ 剖面圖


▽ 大樣設計





熱點新聞